Met een eigen account kun je panden volgen, opslaan als favoriet, je zoekprofiel opslaan en jouw eigen notities bij een huis maken.
Algemeen
Unieke Jaren ’30 Woning aan de Bosrand van Zeddam.
Wonen op een plek waar geborgenheid en vrij uitzicht in harmonie samenkomen. Dat is precies wat deze bijzondere vrijstaande woning aan de Koningsstraat 9 in Zeddam te bieden heeft.
Een karaktervol huis uit 1930 waar nostalgie, warmte en wooncomfort hand in hand gaan.
Betoverend Landelijk Uitzicht
De ligging is simpelweg uniek: direct aa... Meer informatie
Wonen op een plek waar geborgenheid en vrij uitzicht in harmonie samenkomen. Dat is precies wat deze bijzondere vrijstaande woning aan de Koningsstraat 9 in Zeddam te bieden heeft.
Een karaktervol huis uit 1930 waar nostalgie, warmte en wooncomfort hand in hand gaan.
Betoverend Landelijk Uitzicht
De ligging is simpelweg uniek: direct aa... Meer informatie
-
Kenmerken
Alle kenmerken Type object Woonhuis, eengezinswoning, vrijstaande woning Bouwperiode 1930 Status Verkocht onder voorbehoud Aangeboden sinds Maandag 6 oktober 2025 -
Locatie
Kenmerken
| Overdracht | |
|---|---|
| Referentienummer | 00493 |
| Vraagprijs | € 685.000,- k.k. |
| Status | Verkocht onder voorbehoud |
| Aanvaarding | In overleg |
| Aangeboden sinds | Maandag 6 oktober 2025 |
| Laatste wijziging | Zaterdag 25 oktober 2025 |
| Bouw | |
|---|---|
| Type object | Woonhuis, eengezinswoning, vrijstaande woning |
| Soort bouw | Bestaande bouw |
| Toegankelijkheid | Mindervaliden, Senioren |
| Bouwperiode | 1930 |
| Dakbedekking | Dakpannen |
| Type dak | Zadeldak |
| Isolatievormen | Gedeeltelijk dubbel glas |
| Oppervlaktes en inhoud | |
|---|---|
| Perceeloppervlakte | 1.758 m² |
| Woonoppervlakte | 145 m² |
| Inhoud | 659 m³ |
| Oppervlakte overige inpandige ruimten | 18 m² |
| Oppervlakte externe bergruimte | 32 m² |
| Indeling | |
|---|---|
| Aantal bouwlagen | 3 (en 1 kelder) |
| Aantal kamers | 6 (waarvan 5 slaapkamers) |
| Aantal badkamers | 2 (en 1 apart toilet) |
| Locatie | |
|---|---|
| Ligging | Aan bosrand, Aan rustige weg, Dichtbij openbaar vervoer, In bosrijke omgeving, Nabij school, Nabij snelweg, Open ligging, Vrij uitzicht |
| Tuin | |
|---|---|
| Type | Achtertuin |
| Oriëntering | West |
| Staat | Goed onderhouden |
| Tuin 2 - Type | Voortuin |
| Tuin 2 - Oriëntering | Oosten |
| Tuin 2 - Staat | Goed onderhouden |
| Energieverbruik | |
|---|---|
| Energielabel | E |
| CV ketel | |
|---|---|
| CV ketel | Nefit trendlint |
| Warmtebron | Gas |
| Bouwjaar | 2015 |
| Combiketel | Ja |
| Eigendom | Eigendom |
| Uitrusting | |
|---|---|
| Aantal parkeerplaatsen | 5 |
| Aantal overdekte parkeerplaatsen | 1 |
| Warm water | CV-ketel |
| Verwarmingssysteem | Centrale verwarming |
| Badkamervoorzieningen Badkamer 1 | Douche, Ligbad, Wastafel |
| Badkamervoorzieningen Badkamer 2 | Douche, Toilet, Wastafel |
| Parkeergelegenheid | Garage mogelijk |
| Tuin aanwezig | Ja |
| Heeft schuur/berging | Ja |
| Heeft een dakraam | Ja |
| Kadastrale gegevens | |
|---|---|
| Kadastrale aanduiding | Zeddam F 1249 |
| Perceeloppervlakte | 835 m² |
| Omvang | Geheel perceel |
| Kadastrale aanduiding | Zeddam E 1259 |
| Perceeloppervlakte | 700 m² |
| Omvang | Geheel perceel |
| Kadastrale aanduiding | Zeddam F 1261 |
| Perceeloppervlakte | 211 m² |
| Omvang | Geheel perceel |
| Kadastrale aanduiding | Zeddam F 1259 |
| Perceeloppervlakte | 12 m² |
| Omvang | Geheel perceel |
Beschrijving
Unieke Jaren ’30 Woning aan de Bosrand van Zeddam.
Wonen op een plek waar geborgenheid en vrij uitzicht in harmonie samenkomen. Dat is precies wat deze bijzondere vrijstaande woning aan de Koningsstraat 9 in Zeddam te bieden heeft.
Een karaktervol huis uit 1930 waar nostalgie, warmte en wooncomfort hand in hand gaan.
Betoverend Landelijk Uitzicht
De ligging is simpelweg uniek: direct aan de bosrand, met uitzicht over de landerijen en het Montferlandse bos. De grote ramen brengen het groen naar binnen – alsof je elke dag woont in een levend schilderij. Ideaal voor rustzoekers, natuurliefhebbers en iedereen die wil genieten van de seizoenen in volle glorie.
Comfortabel Wonen op de Begane Grond
De woning beschikt over slaapkamers en een badkamer op de begane grond, wat zorgt voor een comfortabel en toekomstbestendig woonprogramma. Of je nu met een gezin bent of levensloopbestendig wilt wonen: dit huis past zich moeiteloos aan jouw levensfase aan.
Royaal Perceel met Oneindige Mogelijkheden
Met een perceeloppervlakte van 1.758 m² is ruimte hier het sleutelwoord.
De diepe achtertuin biedt volop privacy en mogelijkheden: speelruimte voor kinderen, een moestuin, of gewoon een fijne plek om te ontspannen in de zon. Dankzij het aangrenzende weiland kun je zelfs kleinvee houden.
Authentiek Karakter met Potentie
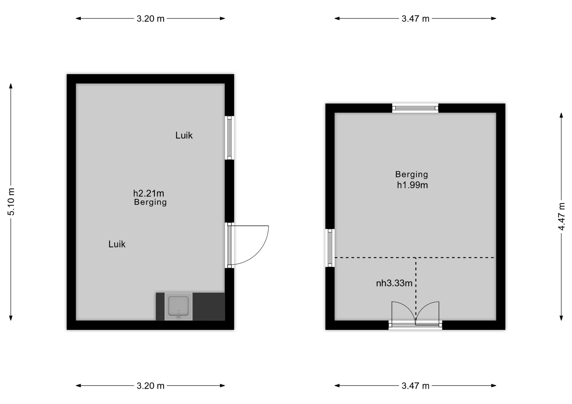
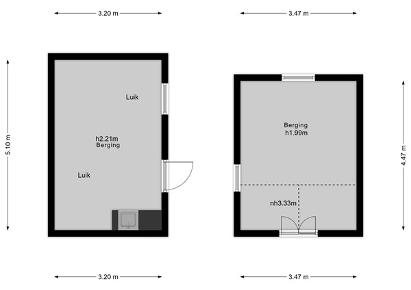
De woning ademt de sfeer van de jaren ’30, met originele details en een solide basis. Het energielabel E biedt ruimte voor verduurzaming en modernisering naar eigen wens. De plattegronden geven een duidelijk beeld van de huidige indeling en de vele mogelijkheden om dit huis volledig naar eigen smaak te maken.
Ligging: Rustig, Groen en Toch Centraal
Zeddam is een charmant dorp met een sterke gemeenschapszin, basisscholen, sportverenigingen en diverse voorzieningen. De bossen van Montferland liggen letterlijk om de hoek, terwijl steden als Doetinchem en ’s-Heerenberg snel bereikbaar zijn. Wandelen, fietsen of gewoon genieten van het buitenleven – het kan hier allemaal.
Zie Jij Jezelf Hier Al Wonen?
Een karaktervolle jaren ’30 woning, een royaal perceel en een uitzonderlijke ligging aan de rand van het bos: dit is wonen zoals het bedoeld is.
Plan vandaag nog een bezichtiging en ervaar zelf de rust, ruimte en charme van de Koningsstraat 9 in Zeddam – misschien wel jouw nieuwe thuis.
Wonen op een plek waar geborgenheid en vrij uitzicht in harmonie samenkomen. Dat is precies wat deze bijzondere vrijstaande woning aan de Koningsstraat 9 in Zeddam te bieden heeft.
Een karaktervol huis uit 1930 waar nostalgie, warmte en wooncomfort hand in hand gaan.
Betoverend Landelijk Uitzicht
De ligging is simpelweg uniek: direct aan de bosrand, met uitzicht over de landerijen en het Montferlandse bos. De grote ramen brengen het groen naar binnen – alsof je elke dag woont in een levend schilderij. Ideaal voor rustzoekers, natuurliefhebbers en iedereen die wil genieten van de seizoenen in volle glorie.
Comfortabel Wonen op de Begane Grond
De woning beschikt over slaapkamers en een badkamer op de begane grond, wat zorgt voor een comfortabel en toekomstbestendig woonprogramma. Of je nu met een gezin bent of levensloopbestendig wilt wonen: dit huis past zich moeiteloos aan jouw levensfase aan.
Royaal Perceel met Oneindige Mogelijkheden
Met een perceeloppervlakte van 1.758 m² is ruimte hier het sleutelwoord.
De diepe achtertuin biedt volop privacy en mogelijkheden: speelruimte voor kinderen, een moestuin, of gewoon een fijne plek om te ontspannen in de zon. Dankzij het aangrenzende weiland kun je zelfs kleinvee houden.
Authentiek Karakter met Potentie
De woning ademt de sfeer van de jaren ’30, met originele details en een solide basis. Het energielabel E biedt ruimte voor verduurzaming en modernisering naar eigen wens. De plattegronden geven een duidelijk beeld van de huidige indeling en de vele mogelijkheden om dit huis volledig naar eigen smaak te maken.
Ligging: Rustig, Groen en Toch Centraal
Zeddam is een charmant dorp met een sterke gemeenschapszin, basisscholen, sportverenigingen en diverse voorzieningen. De bossen van Montferland liggen letterlijk om de hoek, terwijl steden als Doetinchem en ’s-Heerenberg snel bereikbaar zijn. Wandelen, fietsen of gewoon genieten van het buitenleven – het kan hier allemaal.
Zie Jij Jezelf Hier Al Wonen?
Een karaktervolle jaren ’30 woning, een royaal perceel en een uitzonderlijke ligging aan de rand van het bos: dit is wonen zoals het bedoeld is.
Plan vandaag nog een bezichtiging en ervaar zelf de rust, ruimte en charme van de Koningsstraat 9 in Zeddam – misschien wel jouw nieuwe thuis.