Met een eigen account kun je panden volgen, opslaan als favoriet, je zoekprofiel opslaan en jouw eigen notities bij een huis maken.
Algemeen
Betreed deze moderne twee-onder-een-kapwoning en laat je woonwens in vervulling gaan!
Een Prachtig Plaatje
Genesteld op een prachtige locatie aan de Witte Paters 29, in de charmante wijk 's-Heerenberg, vind je dit heerlijke woonhuis uit 2007.
Een ware oase met een perceel van 270 m2, waarin een tuin van 163 m2 schittert met zowel een voortuin als een achtertuin.
Modern Comfort
Dit... Meer informatie
Een Prachtig Plaatje
Genesteld op een prachtige locatie aan de Witte Paters 29, in de charmante wijk 's-Heerenberg, vind je dit heerlijke woonhuis uit 2007.
Een ware oase met een perceel van 270 m2, waarin een tuin van 163 m2 schittert met zowel een voortuin als een achtertuin.
Modern Comfort
Dit... Meer informatie
- 
        KenmerkenAlle kenmerken Type object Woonhuis, eengezinswoning, twee onder een kap woning Bouwperiode 2007 Aangeboden sinds Dinsdag 3 juni 2025 
- 
            Locatie
Kenmerken
| Overdracht | |
|---|---|
| Referentienummer | 00485 | 
| Vraagprijs | € 535.000,- k.k. | 
| Aanvaarding | In overleg | 
| Aangeboden sinds | Dinsdag 3 juni 2025 | 
| Laatste wijziging | Woensdag 3 september 2025 | 
| Bouw | |
|---|---|
| Type object | Woonhuis, eengezinswoning, twee onder een kap woning | 
| Soort bouw | Bestaande bouw | 
| Bouwperiode | 2007 | 
| Dakbedekking | Dakpannen | 
| Type dak | Zadeldak | 
| Isolatievormen | Ankerloze spouwmuren, Dakisolatie, Dubbel glas, Muurisolatie, Spouwmuren, Vloerisolatie, Volledig geïsoleerd | 
| Oppervlaktes en inhoud | |
|---|---|
| Perceeloppervlakte | 270 m² | 
| Woonoppervlakte | 118 m² | 
| Inhoud | 535 m³ | 
| Oppervlakte overige inpandige ruimten | 19 m² | 
| Oppervlakte externe bergruimte | 12 m² | 
| Indeling | |
|---|---|
| Aantal bouwlagen | 3 | 
| Aantal kamers | 5 (waarvan 4 slaapkamers) | 
| Aantal badkamers | 1 (en 1 apart toilet) | 
| Locatie | |
|---|---|
| Ligging | Aan rustige weg, Beschutte ligging, Dichtbij openbaar vervoer, In bosrijke omgeving, In woonwijk, Nabij school, Nabij snelweg | 
| Tuin | |
|---|---|
| Type | Achtertuin | 
| Hoofdtuin | Ja | 
| Oriëntering | Oosten | 
| Staat | Goed onderhouden | 
| Tuin 2 - Type | Voortuin | 
| Tuin 2 - Oriëntering | West | 
| Tuin 2 - Staat | Goed onderhouden | 
| Energieverbruik | |
|---|---|
| Energielabel | B | 
| CV ketel | |
|---|---|
| Warmtebron | Gas | 
| Combiketel | Ja | 
| Eigendom | Eigendom | 
| Uitrusting | |
|---|---|
| Aantal parkeerplaatsen | 2 | 
| Aantal overdekte parkeerplaatsen | 1 | 
| Warm water | Centrale voorziening | 
| Verwarmingssysteem | Centrale verwarming | 
| Ventilatie methode | Mechanische ventilatie | 
| Keukenvoorzieningen | Inbouwapparatuur | 
| Badkamervoorzieningen | Douche, Ligbad, Toilet, Wastafelmeubel | 
| Parkeergelegenheid | Aangebouwde stenen garage | 
| Tuin aanwezig | Ja | 
| Heeft een garage | Ja | 
| Heeft schuur/berging | Ja | 
| Heeft ventilatie | Ja | 
| Kadastrale gegevens | |
|---|---|
| Kadastrale aanduiding | 's-Heerenberg l 2768 | 
| Perceeloppervlakte | 270 m² | 
Beschrijving
            Betreed deze moderne twee-onder-een-kapwoning en laat je woonwens in vervulling gaan!
Een Prachtig Plaatje
Genesteld op een prachtige locatie aan de Witte Paters 29, in de charmante wijk 's-Heerenberg, vind je dit heerlijke woonhuis uit 2007.
Een ware oase met een perceel van 270 m2, waarin een tuin van 163 m2 schittert met zowel een voortuin als een achtertuin.
Modern Comfort
Dit juweeltje biedt een eigen oprit, garage en een prachtige buitenruimte met terrassen om volop van te genieten.
De luxe inbouwkeuken en de sfeervolle woonkamer met openslaande deuren naar de tuin vormen de perfecte setting voor gezellige momenten thuis.
Compleet en Direct Bewoonbaar
De woning wordt compleet opgeleverd met vele extra's en is direct klaar om betrokken te worden. Betreed de ruime entree en ontdek de royale woonvertrekken op de begane grond, inclusief een moderne toiletruimte en een garage met witgoedaansluitingen.
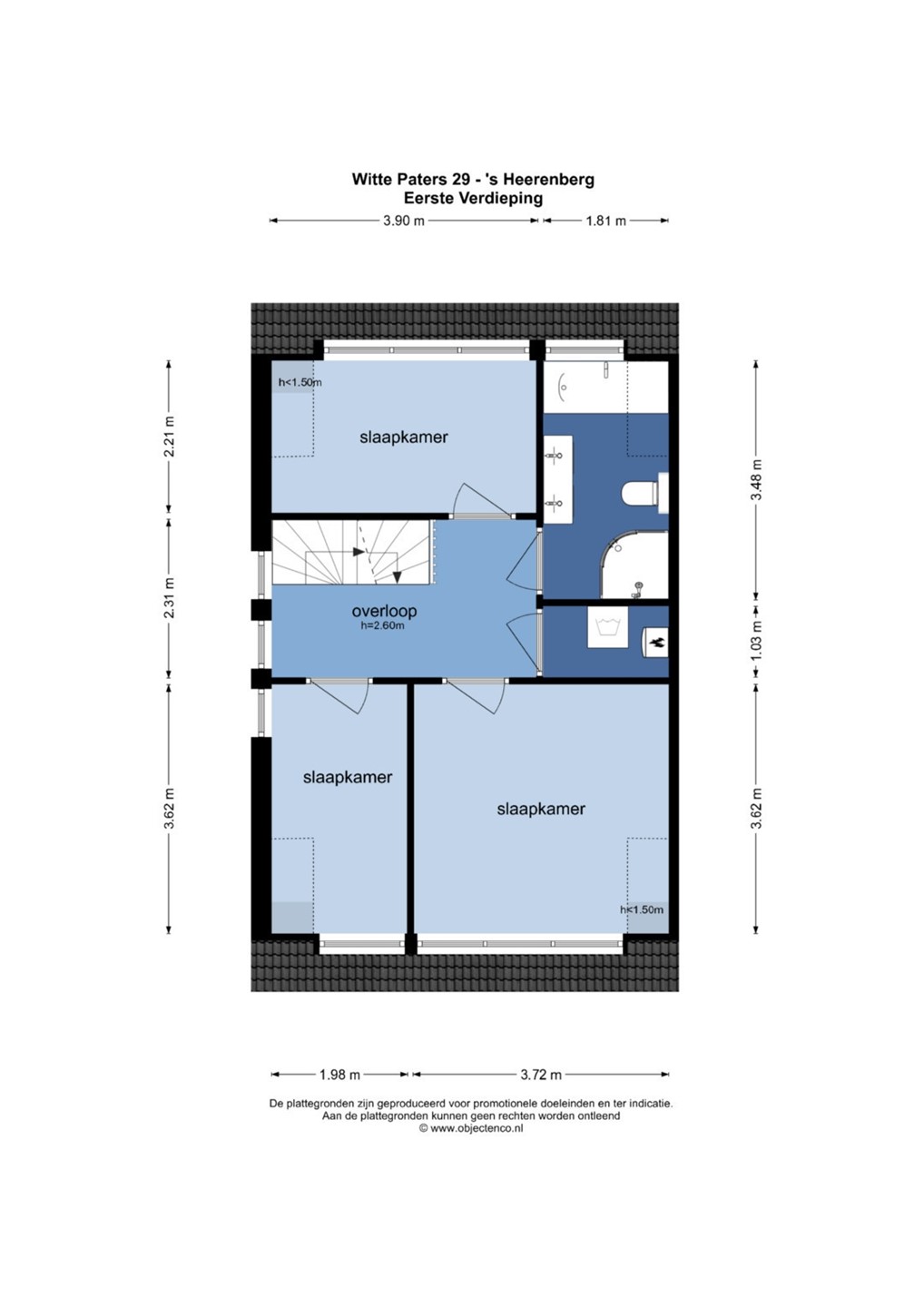
Sfeervolle Slaapvertrekken
Op de eerste verdieping bevinden zich drie royale slaapkamers, een badkamer met douche, ligbad, toilet en vaste wastafel met meubel, en een technische ruimte met C.V.-installatie.
De tweede verdieping herbergt een complete vierde (slaap)kamer met veel bergruimte.
Buitenleven in Stijl
De voortuin is smaakvol aangelegd, terwijl de achtertuin een zonnige oase vormt die naadloos aansluit op de woonkeuken.
Hier vind je ook een houten tuinhuisje, ideaal voor hobbyisten of extra opslagruimte.
Ideale Locatie
Gelegen in een geliefde nieuwbouwwijk, vlakbij een speeltuin en op korte afstand van het bruisende centrum van 's-Heerenberg en de betoverende Montferlandse bossen, biedt deze woning een ideale omgeving voor gezinnen. Makkelijk bereikbaar via diverse uitvalswegen en snelwegen.
Maak Jouw Droom Waar
Nieuwsgierig geworden? Neem snel contact op voor een vrijblijvende bezichtiging en laat je verrassen door de charme van dit huis.
De aanvaarding is in overleg.
    Een Prachtig Plaatje
Genesteld op een prachtige locatie aan de Witte Paters 29, in de charmante wijk 's-Heerenberg, vind je dit heerlijke woonhuis uit 2007.
Een ware oase met een perceel van 270 m2, waarin een tuin van 163 m2 schittert met zowel een voortuin als een achtertuin.
Modern Comfort
Dit juweeltje biedt een eigen oprit, garage en een prachtige buitenruimte met terrassen om volop van te genieten.
De luxe inbouwkeuken en de sfeervolle woonkamer met openslaande deuren naar de tuin vormen de perfecte setting voor gezellige momenten thuis.
Compleet en Direct Bewoonbaar
De woning wordt compleet opgeleverd met vele extra's en is direct klaar om betrokken te worden. Betreed de ruime entree en ontdek de royale woonvertrekken op de begane grond, inclusief een moderne toiletruimte en een garage met witgoedaansluitingen.
Sfeervolle Slaapvertrekken
Op de eerste verdieping bevinden zich drie royale slaapkamers, een badkamer met douche, ligbad, toilet en vaste wastafel met meubel, en een technische ruimte met C.V.-installatie.
De tweede verdieping herbergt een complete vierde (slaap)kamer met veel bergruimte.
Buitenleven in Stijl
De voortuin is smaakvol aangelegd, terwijl de achtertuin een zonnige oase vormt die naadloos aansluit op de woonkeuken.
Hier vind je ook een houten tuinhuisje, ideaal voor hobbyisten of extra opslagruimte.
Ideale Locatie
Gelegen in een geliefde nieuwbouwwijk, vlakbij een speeltuin en op korte afstand van het bruisende centrum van 's-Heerenberg en de betoverende Montferlandse bossen, biedt deze woning een ideale omgeving voor gezinnen. Makkelijk bereikbaar via diverse uitvalswegen en snelwegen.
Maak Jouw Droom Waar
Nieuwsgierig geworden? Neem snel contact op voor een vrijblijvende bezichtiging en laat je verrassen door de charme van dit huis.
De aanvaarding is in overleg.
 
                                     
                                     
                                     
                                     
                                     
                                     
                                     
                                     
                                     
                                     
                                     
                                     
                                     
                                     
                                     
                                     
                                     
                                     
                                     
                                     
                                     
                                     
                                     
                                     
                                     
                                     
                                     
                                     
                                     
                                     
                                     
                                     
                                     
                                     
                                     
                                     
                                     
                                     
                                     
                                     
                                     
                                     
                                     
                                     
                                     
                                     
                                     
                                     
                                     
                                     
                                     
                                     
                                     
                                     
                                     
                                     
                                     
                                     
                                     
                                     
                                     
                                     
                                     
                                     
                                     
                                     
                                     
                                     
                                     
                                     
                                     
                                     
                                     
                                     
                             
            
         
            
         
            
         
            
         
            
         
            
         
            
         
            
         
            
         
            
         
            
         
            
         
            
         
            
         
            
         
            
         
            
         
            
         
            
         
            
         
            
         
            
         
            
         
            
         
            
         
            
         
            
         
            
         
            
         
            
         
            
         
            
         
            
         
            
         
            
         
            
         
            
         
            
         
            
         
            
         
            
         
            
         
            
         
            
         
            
         
            
         
            
         
            
         
            
         
            
         
            
         
            
         
            
         
            
         
            
         
            
         
            
         
            
         
            
         
            
         
            
         
            
         
            
         
            
         
            
         
            
         
            
         
            
         
            
         
            
         
            
         
            
         
            
         
            
         
            
         
                
             
                
             
                
             
                
             
                
             
                
             
                
             
                
            